珠江设计试点“图模实一致”助力无错建造 2023年09月26日  

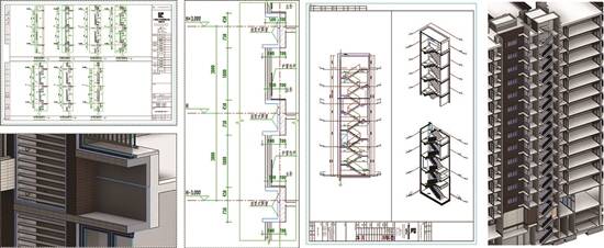
模实一致示意图

BIM设计及局部精细化出图

模型与现场同步展示及不同时间施工对比

  

  

  文/唐培峰

  

  BIM模型的完整性、真实性决定了其真正的应用价值,“图模实一致”,是确保法定工程技术图纸信息与建筑信息模型信息一致,设计信息顺利传递至施工与运维阶段,从而延展至城市信息模型(CIM)和智慧城市建设管理的最理想模式。在传统的二维设计模式下,BIM应用主要通过“翻模”的方式进行,存在工作量大、效率低、配合难等痛点,导致模型与图纸深度不一、信息不一,图模一致无法保障。

  近年来,广州珠江外资建筑设计院有限公司(以下简称珠江设计)通过研究“图模实一致”的技术路线与管理方法,制定相关技术标准,研发相关工具与管理平台,探索设计阶段的图模一致,提升设计质量;试点施工阶段的模实一致,推动施工建造质量的提升,最终实现无错建造。

  

  确保图模一致,提升设计质量

  

  

  在最近的20年里,随着我国大规模工程建设的开展, BIM技术已在我国大量工程项目中得到广泛应用,但目前设计阶段采用的BIM数据生产方式还是以“翻模”为主。

  据悉,以“翻模”形式生产的BIM模型往往与实际设计图纸不符,不能真正地反映设计意图,更不能代替图纸在实际建造中起到指导作用,并且由于项目各阶段信息的割裂,BIM设计模型并没有实际应用到设计下游链条中,BIM的数据流转价值无法体现。

  为解决上述问题,珠江设计结合BIM技术的特点,重新梳理设计流程,不同设计阶段下的图纸深度要求、分工模式等,通过成建制BIM设计的实践路线实现“图模一致”。珠江设计党总支书记、董事长杨坚说:“在图模一致的基础上,用模型指导具体施工,从而实现模实一致。我们希望能够和志同道合的施工单位一起,在推动模实一致的过程中实现建筑业的智能建造,最终降低建造全过程的成本,提高项目设计和施工质量。”

  

  全专业闭环,减少错漏碰缺

  

  在传统设计流程中,各专业只能通过二维图纸进行错漏碰缺查询,不直观且效率低下,在复杂的空间部位容易产生大量专业间的碰撞问题,对于多团队协作的项目更是如此。

  对此,珠江设计通过对传统CAD出图流程中的各阶段深度要求与BIM正向设计的冲突矛盾点进行梳理,重新定义了在BIM模式下,各阶段的设计协同和深度要求,明确了模型设计成图的概念。珠江设计全院普及BIM正向设计,基于三维模型进行设计、提资与出图,开展碰撞检查、净高分析与管线综合等工作,实现全专业闭环,降低沟通成本,提高设计质量。

  例如,在白云机场三期清㘵安置区项目中,全专业基于BIM模型开展三维协同设计,在统一管理平台下通过三维模型让各参与方进行数据交换,实现全专业交互式设计,项目设计信息集中体现在三维模型中,并动态落实到二维平面上,达到各专业设计闭环,信息交圈的效果,从而减少项目的错漏碰缺,确保图模一致。

  

  全场景应用,实现精细化设计

  

  传统设计的场景较为单一,缺乏多视角、多维度进行设计思考与评估,导致设计无法深入、设计质量不高、设计效果不生动。而通过BIM技术在不同场景下的应用,可以充分挖掘工程建设各阶段的核心痛点,有针对性地提出技术解决方案,为下游链条的数据流转奠定坚实的基础。

  在白云机场三期清㘵安置区项目中,珠江设计通过全方位、全场景的BIM技术应用,为业主带来提质、增效、降本的综合价值。在总图设计中应用BIM技术,解决场地与土方问题;在地下室设计中应用BIM技术,解决层高控制与车位优化问题;在精装修设计中应用BIM技术,解决精细化设计出图与工程量统计问题。

  另外,依托珠江设计自有的研发团队自研软件支撑高效设计,如通过NavisSync二三维同步插件实现模型与图纸定位同步联动,提高校审效率;通过ReCAD正向出图插件一键导出符合设计制图标准与阅读习惯的图纸,攻克软件出图壁垒,提高出图效率与质量。研发团队在项目实践过程中根据设计师的需求进行工具开发,并在使用中进行完善,形成一套行之有效的工具系统,解决平台化BIM软件原生功能难以匹配项目周期的要求,及设计师操作习惯等问题,不断提升BIM设计效率,深入挖掘每一个设计细节,高质量地完成项目的设计任务。

  

  试点模实一致,助力无错建造

  

  “模实一致”是城市信息模型(CIM)和智慧城市建设管理的基本要求,但“模实一致”实现难度非常大,目前,业界尚未有相关的可复制的技术路线。

  珠江设计提出的“建设全链条的模图实一致”,是BIM赋能建设全链条的创新理论,打破了国内BIM模型应用只能停留在纸面上的现状。

  同时,珠江设计在项目中试点开展BIM“模实一致”工作。由于二维图纸交底容易造成理解误差、复杂工艺交底不到位等问题,最终导致重难点部位未按图施工,造成拆改返工及成本浪费。珠江设计在正向设计模式下完成的高质量的BIM模型,结合现场需求深化后,可进行三维可视化交底,指导施工现场建造工作,并立足于“模实一致”技术应用落地的需求,通过探索“模实一致”的技术路线与管理方法,制定相关技术标准,开发“模实一致”记录工具、模实同步展示平台等技术工具,对关键节点、工艺、工序进行可视化模拟,开展三维施工交底,由施工管理人员落实按模施工要求,严格按模施工,并派驻专职驻场工程师,实时采集、记录施工数据是否符合按模施工的标准。“按模施工”的创新技术手段弥补了“按图施工”的缺陷,为发展高质量建造奠定了技术基础。

  

  拓展应用,模型检验施工质量

  

  施工现场工序交叉复杂,进度不一,仅通过现场照片、二维图纸等进行质量检查不够直观,巡查效率低下,且容易忽略隐蔽部位的施工质量问题。通过轻量化的BIM施工模型与可移动终端设备的结合,开展项目巡场,可以直观地检验施工过程与设计意图是否一致,呈现隐蔽部位的施工效果。

  为了进一步夯实“模实一致”的创新技术路线,珠江设计通过自研的“模实一致”应用平台,将收集的现场数据与BIM模型进行深度匹配与对比,如管线走向、预留孔洞、土建尺寸、结构净高等,同时联合珠江建设对不符合模型要求的施工效果进行快速整改,减少后期返工。另外在施工过程中采用模型与施工现场进行三维可视化实时比对,通过直观的“模实一致”手段,辅助业主实现对施工质量的精细化管控,加快现场的问题决策的同时,打造广州施工领域的BIM应用和数字建造示范标杆,并持续扩大行业影响力。

  珠江设计作为40多年的国企老字号,将秉承习近平总书记关于国有企业改革发展的重要论述精神,全面进行改革创新,基于成建制BIM设计模式,通过“图模实一致”的落地实践,着力提升自身技术服务质量,助力无错建造,为新时代建筑业“十四五”高质量发展贡献力量。