|
|
|
|
|
■客厅改造前后对比。 |
|
|
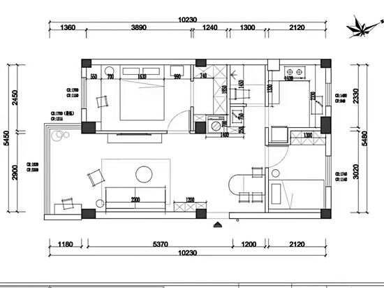
■改造后的户型图。 |
|
|
|
|
|
|
|
|
|
|
|
|
|
|
|
|
|
扫码了解更多“家·生活”资讯 |
在房价昂贵的一线城市,对于许多人来说,选择老破小看似是一个退而求其次的选项。面积狭小、户型奇葩、装修陈旧、光线昏暗……这些问题都是新房业主在装修时要面对的难题。在资金有限的情况下,如何将“老破小”变成“精巧美”,打造一个时尚与温馨并存的新家,自然少不了设计方面的巧思。 ■新快报记者 梁茹欣/文 受访者供图 52m2老破小改造后 “自带结界” 在二十八九岁的年纪,拥有一间属于自己的理想家,是很多人梦寐以求的事情。在2021年圣诞节前后,90后自由职业者乐乐完成这件人生大事,搬进了由自己一手打造的新家中。对于新房,她几乎倾注所有的业余时间与耐心,查阅各种家装资料、找团队设计与施工,花费半年时间终于将这间52m2的老破小改造成功。 乐乐提到,自小在广州西关长大,对这类老旧的小区有着深厚的感情,适逢新婚,购房计划也随之提上日程。在她看来,理想的家居生活应该是充满人间烟火气:住宅和小商小贩相隔不远,走下楼梯,便可以与街上的商业接触;建筑新旧参半,街道短小而连续,有着便利的生活网络与交通设施等等。所以在综合考虑预算、地理位置、生活配套等各种因素的情况下,最终选择在海珠区一处老旧小区买房。 相较同小区的其他户型,乐乐所改造的新家显得格外突出,且“自带结界”。据其介绍,房子硬装与软装搭配,加上购买主材、定制柜子、购置各种家具和电器等,实际落地大约花费25万元。尽管细节部分仍有个别瑕疵,但房屋整体的效果还是比较符合她的预期。 当然,老破小在装修改造的时候还有诸多问题和细节需要格外注意。老破小的房龄偏久,其房屋结构可能无法满足户主当下的生活需求,需重新规划空间布局。拆改完成之后,要处理老房子里面水电、门窗老化,以及漏水的问题……这些都意味着装修施工与后续保养工作的繁琐与复杂。乐乐对此深有同感,“选择老破小要有一定的心理准备,即使改造装修完成,后续还是可能会出现漏水渗水、墙体剥落等情况,需要花费更多时间精力去维护好。” 餐厅 入户无玄关型,靠墙一侧是白色的收纳柜,既能存放家居用品,又能扩充玄关空间,储藏不常穿的鞋子。柜子底部悬空,巧妙设计出一个迷你换鞋区。进门右手边是餐厅的位置。餐桌选了半椭圆形状的款式,简单小巧,长度约1.2米左右,平时两人用餐足以。另外,搭配一盏不规则吊灯,起到了丰富空间的作用,从而避开了刻板与单调。 客厅 客厅整体布置是浅白色系,再搭配一张复古绿丝绒的多人沙发做点缀,起画龙点睛之笔。电视背景墙同样采取留白处理,搭配上原木棕色电视柜后,既简约又高级。对于小户型来说,预留出足够的收纳空间十分重要。所以客厅处定制了一面墙的收纳柜,将洗衣机、烘干机、家居杂物等等统统藏起来。这里还藏了一个“小心机”,大面积留白的客厅中间藏着一道白色木门,通向主卧。 作为全屋唯一的阳台,采取封闭式处理,将此纳入客厅中,让室内空间看起来宽敞不小。至于日常晾衣问题,则搭配烘干机解决。在这里多出来的几平方米也成为家中的多功能休闲区,安放一张书桌在一旁,平时可以在这里看书、工作、晒太阳等,甚至还可以是家中两只小猫咪的猫爬架。 主卧 推开卧室的门,墙面色调采用白色与墨绿进行上下分层处理,恰当的藤条编织形状的床头柜与墨绿色相呼应。一旁的窗台安装棕色的百叶窗,让视觉更轻巧。不同于布艺窗帘一样把空间向地面拉伸,百叶窗的使用让空间感更加立体,并展现出不同的韵味和光影感。同时,安放一张长梳妆桌,满足日常护肤、化妆等的小需求。 卧室另一侧打通墙体,改造出一个实用的衣帽间,家庭成员的衣物、床褥被套等日常用品基本都能收纳其中。 厨房 厨房的整体色调以黑白为主。考虑到厨房收纳空间不足的问题,尽可能地利用墙体做了嵌入式储物格,并采用收纳盒,或者叠放等方式解决台面空间有限的问题。门口处还安装一扇磨砂玻璃门做隔断, 做饭时拉上,以挡住厨房的油烟。 卫生间 原卫生间的面积很小,所以采取向外“借”空间的设计方式,将通往卫生间外部的走道安装独立洗漱台, 让内部使用面积变大。经过改造后不但可以实现干湿分离,还拥有独立的淋浴房,使用体验感提升不少。 Tips 3个设计“心机”,让小户型看起来成倍放大 1.压缩不必要的生活功能区 在清楚了解自己的生活习惯与需求的基础上,适当压缩一些对于自己来说并不太重要的功能区,从而扩大其他功能区。另外,因为房屋面积有限,在家具选择上,不妨以舒适小巧,便于移动为主,让室内的动线更加便捷。 2.浅色为主,适当亮色点缀 狭长形的房间会从视觉上给人以空间狭窄、稍显压迫的感觉,所以要对家具颜色和材质的选择上做到统一,选用浅色系家具制造视觉延伸感。例如,采用同一色系的木地板或瓷砖通铺,避免复杂的波打线切割空间,进而使得视觉产生延展性。若是不想空间色彩太单调,可以适当搭配自己喜爱的亮色元素点缀。 3.充足的收纳空间 户型空间有限情况下,要保证收纳空间最大化。例如在装修时打造墙面橱柜,增加收纳空间。同时,采用嵌入式设计把家用电器放置在角落或者畸形的地方,避免各种家具堆叠,尽量在空间上保持整洁干净,视觉上也会更加的美观。
